BREW PUB

BRIEF DESCRIPTION

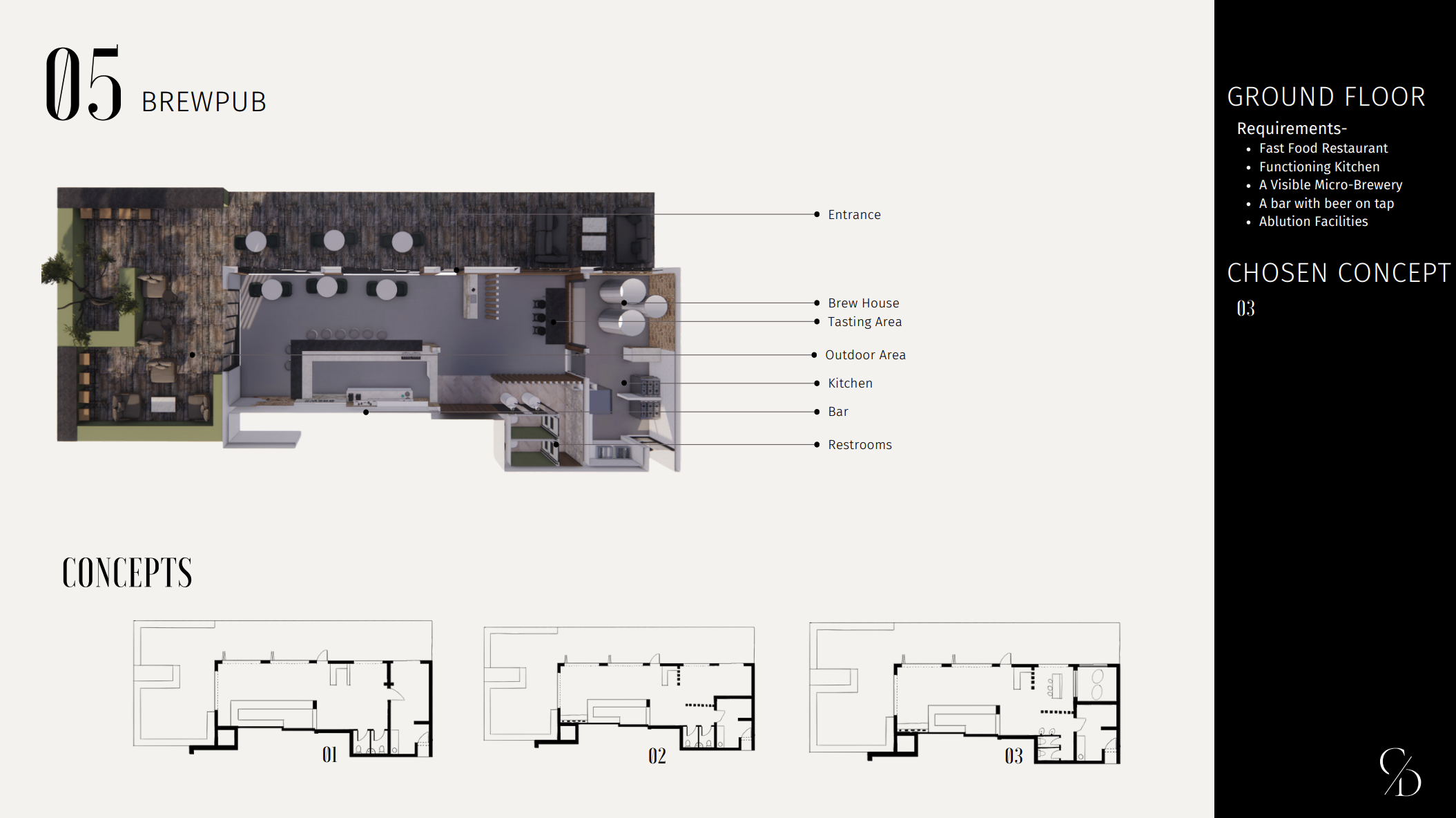
I was asked to design a Brew Pub. The designated building was given but it was up to me to creat a brand, purpose, and visual brand identity.

I was asked to design a new pub restaurant that is practical, considered innovative, and aligns with the company’s brand purpose and identity. South Africa has a strong beer culture Inspired by international trends, micro-breweries and brewpubs have more than doubled in the last few years. They now account for at least 1% of the market share for beer. The taste for craft beer continues to increase with many successful craft beer fairs held across the country.

Three enthusiasts are passionate about craft beer and have been brewing beer from their homes for several years. They have decided to take the plunge and open a ‘brewpub’ brewing their own special artisan blends from local ingredients for distinctive and unique flavors.

I as the designer had to create the company’s brand and visual brand identity to ensure the design effectively reflects this. To complete the brewpub’s identity, I designed the menu (including the food I suggest is served) and the labels for the beer bottles.

PRECEDENT STUDY

Brand Purpose

Brand Position

The Designer has decided to offer a unique craft beer experience to the Brewpub. The pub will be called Ubuntu Brews, providing a unique craft beer experience combining traditional brewing techniques with a modern twist. This was decided as the designer wants to honour South Africa’s beer culture and embrace the rising trend of craft beer. The designer aims to provide a communal space for beer enthusiasts to explore distinctive and unique flavours.

Brand Differentiation

Ubuntu Brews is not just a brewpub, it’s a hub of community and craftsmanship. What sets the brewpub apart from others is its commitment to locally sourced ingredients and its openness to share the brewing process with its consumers. Ubuntu Brews addresses the need for a genuinely local and authentic craft beer experience.

Brand Trust

Ubuntu Brews will become a synonym for authenticity, quality, and community. People will associate it with an atmosphere of camaraderie, great craft beers, and a true South African spirit.

Visual Brand Identity

Logo

Our logo is an intertwined silhouette of an Acacia tree, barley, and hops, symbolizing the blend of Africa and brewing. The Acacia tree represents our root in the community, while the barley and hops depict our brewing heritage.

Colour Scheme

the Designer has chosen a warm and earthy palette of browns, green, and gold. These colours represent South Africa’s unique landscapes and the warmth of its people.

Slogan

Our slogan is “Savour the Spirit of Ubuntu”. This phrase embodies our commitment to community, quality, and authenticity